Дома под ключ в Пестово
Отзывы из Яндекс Карт
4.9
103 отзывов
Дополнительные услуги 88%
2 154 оценок
Комплектации 89%
1 535 оценок
Планировки 90%
2 484 оценок
Проекты 93%
2 231 оценок
С
Вивиана Г.04/14/2026 г.
Маленький домик 4х4 для гостей заказывала как бытовку. Сделали за 10 дней, но покрасили неровно — пришлось самой подкрашивать. За цену в 400 тысяч терпимо, но ожидала более качественной покраски.
С
Габриэлла Царёва05/17/2025 г.
Сомневались с мужем между разными компаниями, но выбор в пользу Брус дома оказался стопроцентно верным. Цена полностью соответствует качеству, никаких скрытых доплат или сюрпризов. Все четко, прозрачно и по договору. Редкая в наше время честность и порядочность.
Отзывы из Google Карт
4.8
62 отзывов
Дополнительные услуги 88%
2 154 оценок
Комплектации 89%
1 535 оценок
Планировки 90%
2 484 оценок
Проекты 93%
2 231 оценок
С
Болеслав Ковалёв03/28/2026 г.
Жилой дом 7х11 для постоянного проживания с верандой. Утеплили хорошо, окна двухкамерные. Но во время стройки строители повредили забор соседа — сами договорились и починили. Без скандалов.
С
Дмитрий Мишустин02/01/2026 г.
Строительство шло тяжело из-за моего же графика — я часто уезжал в командировки. Менеджер присылал фото через ватсап каждый вечер. Дом 11х12 с террасой получился, спасибо.
С
Эрнест Золотарев01/10/2026 г.
Честно говоря, не ожидал от БрусДома такого подхода: заказал дом 60 кв.м с печкой и верандой, сделали за месяц. Но электрику монтировали не по схеме - розетки на кухне забыли, пришлось вызывать электрика за свой счёт. В остальном претензий нет, тёплый и уютный.
С
Прохор В.01/18/2025 г.
Огромное спасибо коллективу компании за возведение бани моей мечты. От проекта до реализации прошло совсем немного времени, но каждую неделю мне предоставляли полный отчет о проделанной работе с фотографиями. Бригада работала слаженно и профессионально, виден огромный опыт в работе с деревом. Баня из бруса получилась на удивление прочной, теплой и невероятно красивой.
Отзывы из 2гис
4.9
36 отзывов
Дополнительные услуги 88%
2 154 оценок
Комплектации 89%
1 535 оценок
Планировки 90%
2 484 оценок
Проекты 93%
2 231 оценок
С
Владимир В.08/24/2025 г.
Мне как человеку дотошному важно было контролировать каждый этап, но вскоре я понял, что могу полностью довериться профессионалам из Брус дома. Они сами звонили и консультировались по всем мелочам, предлагали грамотные технические решения. Дом каркасный построили очень тёплый и прочный, зимой проверку холодом прошёл на отлично. Отдельное спасибо прорабу Виктору за внимательность и терпение.


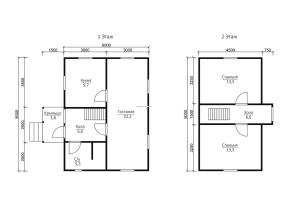
Проект №39 Дом из бруса 6х8

брус камерной сушки
Создайте свой план для этого проекта
и отправьте его нам на расчет в один клик.
Под ключ (с отделкой) 6х8 Профилированный 140х140 мм 1990000 Заказать
Под ключ (с отделкой) 6х8 Профилированный 190х140 мм 2210000 Заказать
Под усадку (без отделки) 6х8 Cруб дома 140х140 мм 1260000 Заказать
Под усадку (без отделки) 6х8 Cруб дома 190х140 мм 1410000 Заказать


Комплектация

Площадь застройки: м2
Длина: 6 м
Ширина: 8 м
Общая площадь: 71.08 м2
Под ключ (с отделкой) Под усадку (без отделки)
Фундамент Свайно-винтовой или ж/б сваи (рассчитываются отдельно).
Гидроизоляция фундамента Рубероид в два слоя.
Основание (обвязка) Из обрезного бруса (100х150 мм. 150х150 мм. 150х200 мм. согласно выбранному сечению бруса). Обработка антисептиком.
Количество рядов основания 2 2
Цокольное перекрытие Обрезной брус камерной сушки 100х150/50х200 мм. с шагом 600 мм. Обработка антисептиком. Обрезной брус естественной влажности 100х150/50х200 мм. с шагом 600 мм. Обработка антисептиком.
Пол черновой Обрезная доска камерной сушки 20х100 мм. Обрезная доска естественной влажности 20х100 мм.
Внешние стены Профилированный брус камерной сушки, сечением 90х140/140х140/190х140 мм. по выбранной комплектации. Два вида профиля: 
1. С двух сторон, прямой со снятой фаской. 2. Снаружи под «блок- хаус», внутри прямой.
Высота сруба: Сруб одноэтажный- 18 венцов
Сруб с мансардой- 18 венцов
Сруб в 1,5 этажа- 18 венцов, далее каркас с внешней отделкой имитацией бруса.
Сруб в 2 этажа- 37 венцов
Профилированный брус естественной влажности, сечением 90х140/140х140/190х140 мм. по выбранной комплектации. Два вида профиля: 
1. С двух сторон, прямой со снятой фаской. 2. Снаружи под «блок- хаус», внутри прямой.
Высота сруба: Сруб одноэтажный- 18 венцов
Сруб с мансардой- 18 венцов
Сруб в 1,5 этажа- 18 венцов, далее каркас с внешней отделкой имитацией бруса.
Сруб в 2 этажа- 37 венцов
Межвенцовый утеплитель Джут (льноджутовое полотно). Джут (льноджутовое полотно).
Перегородки 1-го этажа Профилированный брус камерной сушки, сечением 90х140 мм. Профилированный брус естественной влажности, сечением 90х140 мм.
Перегородки 2-го этажа Каркасные: доска камерной сушки 40х100 мм, обшитые евровагонкой хвойных пород, камерной сушки, толщиной 12,5 мм. сорт «АВ» (дома с мансардой и в 1,5 этажа). Брусовые: профилированный брус камерной сушки, сечением 90х140 мм. (дома двухэтажные). Каркасные: доска естественной влажности 40х100 мм. (дома с мансардой и в 1,5 этажа). Брусовые: профилированный брус естественной влажности, сечением 90х140 мм. (дома двухэтажные).
Сборка сруба Берёзовый нагель. Берёзовый нагель.
Соединение углов сруба «Тёплый угол» (коренной шип). «Тёплый угол» (коренной шип).
Высота от пола до потолка Сруб одноэтажный: 2,4 м. (18 венцов) Сруб с мансардой: 1-ый этаж- 2,4 м. (18 венцов)
2-ой этаж (мансарда)- 2,3 м.
Сруб в полтора и два этажа:
1-ый этаж 2,4 м ±4 см. (18 венцов)
2-ой этаж 2,4 м ±4 см. каркасные аттиковые стены (боковые) высотой 1,5 м. в полутораэтажном доме
2,4 м ±4 см (поднят брусом на 18 венцов) в двухэтажном доме.
Сруб одноэтажный: 2,5 м. (18 венцов) Сруб с мансардой: 1-ый этаж- 2,5 м. (18 венцов)
2-ой этаж (мансарда)- 2,4 м.
Сруб в полтора и два этажа:
1-ый этаж 2,5 м ±4 см. (18 венцов)
2-ой этаж 2,5 м ±4 см. каркасные аттиковые стены (боковые) высотой 1,5 м. в полутораэтажном доме
2,5 м ±4 см (поднят брусом на 18 венцов) в двухэтажном доме.
Утепление (пол, потолок, мансарда) Минеральная вата Knauf 150 мм. Отсутствует.
Пароизоляция (пол, потолок, мансарда) Ондутис R70. Отсутствует.
Пол чистовой Шпунтованная доска камерной сушки толщиной 36 мм. сорт АВ. по рейке 20х40 мм. либо шпунтованная ДСП 16 мм. по разряженной обрешётке из обрезной доски камерной сушки 20х100 мм. Отсутствует.
Потолки Евровагонка камерной сушки толщиной 12,5 мм. сорт АВ. Отсутствует.
Окна Деревянные, двойного остекления. Отсутствуют.
Двери Входная- металлическая, утеплённая (Россия). Межкомнатные- филёнчатые. Отсутствуют.
Наличники на окна и двери Наличник деревянный, строганый, камерной сушки 70-90 мм. Отсутствует.
Шиповка оконных и дверных проёмов (ройки) Да. Отсутствует.
Лестница (при наличии второго этажа) Деревянная, одно или двухмаршевая. Перила- заводские резные, балясины- заводские точеные, устанавливаются стартовые точёные столбы. Ступени 40х200 мм. Тетива лестницы- 90х140 мм. Отсутствует.
Крыша Двускатная, ломаная или вальмовая в соответствии с проектом. Двускатная, ломаная или вальмовая в соответствии с проектом.
Стропильная система Выполнена из обрезной доски камерной сушки 40х150 мм. Шаг установки стропильных ног 600 мм. Выполнена из обрезной доски естественной влажности 40х150 мм. Шаг установки стропильных ног 600 мм.
Обрешётка Выполняется из обрезной доски камерной сушки толщиной 20-22 мм. Шаг крепления обрешетки 300 мм. Контробрешётка выполняется из бруска камерной сушки 40х50 мм. Крепится по стропильным ногам (вентиляционный зазор). Выполняется из обрезной доски естественной влажности толщиной 20-22 мм. Шаг крепления обрешетки 300 мм. Контробрешётка выполняется из бруска естественной влажности 40х50 мм. Крепится по стропильным ногам (вентиляционный зазор).
Подкровельная мембрана Ондутис А100 Ондутис А100
Кровельное покрытие (на выбор) Ондулин, Черепица Ондулин. Ондулин, Черепица Ондулин.
Фронтоны (при наличии) Каркас из обрезной доски камерной сушки 40х150 мм. Обшиваются вагонкой камерной сушки толщиной 16 мм. сорт АВ по контррейке 20х40 мм. (вентиляционный зазор). Влаго-ветрозащита Ондутис А100. Монтаж вентиляционных решёток. Каркас из обрезной доски естественной влажности 40х150 мм. Обшиваются вагонкой камерной сушки толщиной 16 мм. сорт АВ по контррейке 20х40 мм. (вентиляционный зазор). Влаго-ветрозащита Ондутис А100. Монтаж вентиляционных решёток.
Свесы крыши Ширина 400 мм. Подшиваются вагонкой камерной сушки, сорт АВ. Ширина 400 мм. Подшиваются вагонкой камерной сушки, сорт АВ.
Терраса/балкон (при наличии) Устанавливаются опорные столбы из строганного бруса камерной сушки 140х140 мм. с компенсационными болтами под усадку. Устанавливаются опорные столбы из строганного бруса естественной влажности 140х140 мм. с компенсационными болтами под усадку.
Отделка потолка террасы/балкона Евровагонка камерной сушки толщиной 12,5 мм. сорт АВ. Отсутствует.
Пол террасы/балкона Шпунтованная доска камерной сушки толщиной 36 мм. сорт АВ. Отсутствует.
Ограждение террасы/балкона Перила- строганая доска. Балясины- точеные, фигурные. Либо ограждение в скандинавском стиле. Устанавливаются ступени у входа. Отсутствует.
Допуск на геометрические параметры сруба Составляет +/- 50 мм по длине с каждой стороны. Составляет +/- 50 мм по длине с каждой стороны.
Допускается стыковка бруса, вагонки и половой доски По всему периметру стен дома (если ширина и длина дома более 6,0 метров). Вагонки и доски пола в каждой отдельной комнате. По всему периметру стен дома (если ширина и длина дома более 6,0 метров).
Допуски по брусу, доске +/- 5 мм. +/- 5 мм.
В стоимость включена Доставка комплекта материала в радиусе 500 км. от г. Пестова Новгородской области и сборка дома на вашем участке. Доставка комплекта материала в радиусе 500 км. от г. Пестова Новгородской области и сборка дома на вашем участке.
Гарантия 5 лет. 2 года.
Бытовка строительная 2,0х3,0 м. каркасно-щитовая. Стоимость 23000 руб. Остаётся на участке Заказчика. Стоимость 23000 руб. Остаётся на участке Заказчика.
Туалет 1,0х1,0 м. каркасно-щитовой. Стоимость 12000 руб. Остаётся на участке Заказчика. Стоимость 12000 руб. Остаётся на участке Заказчика.
Генератор Стоимость аренды на весь срок строительства 10000 руб. ГСМ за счёт Заказчика. Стоимость аренды на весь срок строительства 10000 руб. ГСМ за счёт Заказчика.

Строительство деревянного дома осуществляется в нескольких видах: под усадку, когда сруб отстаивается на протяжении определенного времени и полностью под ключ.

Зимой мастера рекомендуют строить дома из зимнего леса, летом - из бруса камерной сушки.

Оптимальными для дачи или сада являются экономичные домики на винтовых сваях, на нашем сайте имеются одноэтажные и полуторатажные варианты.

Если вы планируете проживать постоянно, готовы предложить надежные и очень теплые дома на плитном и ленточном фундаменте.

Имеется несколько вариантов размеров профбруса: 190х140 мм и 140х140 мм. Дома из вертикального бруса возводятся с использованием бруса 140х190 мм.

Дополнительные услуги


Проект 39 – оригинальное решение полутораэтажного дома из бруса с . Общая площадь помещений по этому проекту –71.08 кв.м., размер дома – 6х8 м..

Стены здания выполнены из строганого бруса с профильными соединениями паз-гребень. Между венцами уложено льноджутовое полотно. Двойное остекление оконных проемов и филенчатые двери обеспечивают отсутствие сквозняков в доме и благоприятный микроклимат, а двойные зимние окна – естественное освещение и свежий воздух.

Полы двойные – чистовая шпунтованная доска настелена по черному покрытию из полуобрезных досок.

двускатная крыша покрывается ондулиновым шифером красного, коричневого или зеленого цвета – на выбор заказчика.

Компания «Дача из бруса» не только поставляет домокомплекты по данному проекту , но и может выполнить работы по его установке – от нулевого цикла и подводки коммуникаций до финишной отделки.


Заказать или задать вопрос



Заказать или задать вопрос

Заказать звонок