Дома под ключ в Пестово
Отзывы из Яндекс Карт
4.9
112 отзывов
Дополнительные услуги 88%
2 154 оценок
Комплектации 89%
1 535 оценок
Планировки 90%
2 484 оценок
Проекты 93%
2 231 оценок
С
Виктор04/23/2026 г.
Брал проект 7х10 с сауной и террасой под ключ. Очень понравилось, что дали гарантию на усадку и все работы. Через полгода брус на солнце выгорел неравномерно — позвонил, прислали состав для покраски бесплатно.
С
Стас01/28/2026 г.
Заказывал фундамент под баню, потом решил и саму баню у них же взять — 5х6 с сауной и бассейном. Фундамент залили отлично, а вот с бассейном намучались: пленка для гидроизоляции оказалась бракованной, заменили без споров.
С
Валентина Акимова05/28/2025 г.
Спасибо компании за то, что помогли нам построить первый семейный дом! Мы молодая семья и для нас это был очень ответственный шаг. Нас полностью сопровождали на всех этапах, подробно консультировали по всем вопросам, от выбора проекта до тонкостей отделки. В итоге мы получили современный, тёплый и очень уютный каркасный дом, в котором растёт наш сынишка. Мы счастливы!
Отзывы из Google Карт
4.8
68 отзывов
Дополнительные услуги 88%
2 154 оценок
Комплектации 89%
1 535 оценок
Планировки 90%
2 484 оценок
Проекты 93%
2 231 оценок
С
Роберта Козырева05/04/2026 г.
Заказ на дом 10х12 с баней внутри обсуждали почти два месяца. Менеджер Настя всё терпеливо объясняла. Стройка заняла 4 месяца, результат очень достойный, но осадок остался от того, что электрику тянули без штроб — просто поверх стен, пришлось переделывать за свой счет.
С
Дженни Маркова06/30/2025 г.
Это был мой первый опыт строительства загородной недвижимости, и я бесконечно рада, что обратилась именно в «Брус дома» — вы сделали всё настолько качественно и продуманно, что даже сложные моменты были решены легко и быстро. Отдельное спасибо за тёплые рекомендации по уходу за древесиной и детальные фотоотчёты на каждом этапе, которые позволяли быть в курсе событий, несмотря на расстояние.
Отзывы из 2гис
4.9
36 отзывов
Дополнительные услуги 88%
2 154 оценок
Комплектации 89%
1 535 оценок
Планировки 90%
2 484 оценок
Проекты 93%
2 231 оценок
С
Радомир Дьяконов03/09/2026 г.
Заказал дом 8х16 длинный, с террасой и навесом на всю длину. Строили зимой, снег мешал, но справились. Проблема: полы на первом этаже холодные, забыли утеплитель под стяжку положить, вскрывали, доделывали.
С
Ада Ковалёва02/08/2026 г.
Приняли дом неделю назад. Пока обживаемся. Замечаний много по мелочи: где-то плинтус отошел, где-то дверь затирает. Составили список, прораб забрал, сказал, в течение двух недель все исправит. Посмотрим.
С
Сережа Трошин01/17/2025 г.
Выбирал между брусовой и каркасной баней — консультант компании подробно расписал плюсы и минусы каждого варианта для моих целей, не навязывая дорогой проект, в итоге остановились на каркасной, и я более чем доволен своим выбором и качеством исполнения.


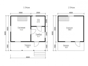
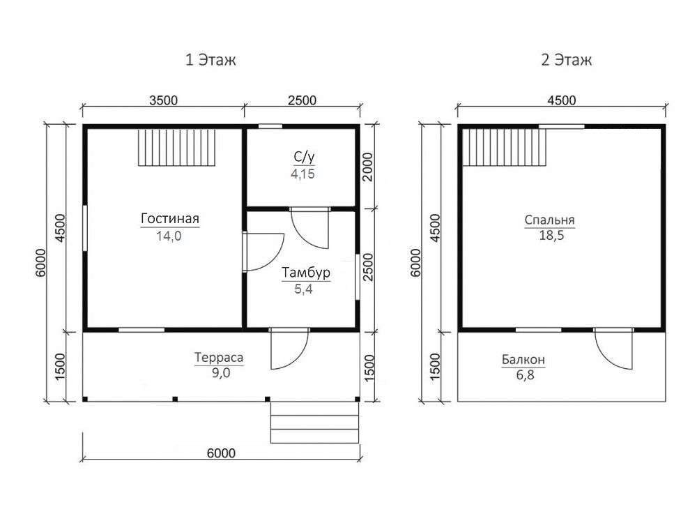
Проект №10 Дом с балконом и террасой 6х6

брус камерной сушки
Создайте свой план для этого проекта
и отправьте его нам на расчет в один клик.
Под ключ (с отделкой) 6х6 Профилированный 140х140 мм 1370000 Заказать
Под ключ (с отделкой) 6х6 Профилированный 190х140 мм 1500000 Заказать
Под усадку (без отделки) 6х6 Cруб дома 140х140 мм 890000 Заказать
Под усадку (без отделки) 6х6 Cруб дома 190х140 мм 1020000 Заказать


Комплектация

Площадь застройки: 36 м2
Длина: 6 м
Ширина: 6 м
Общая площадь: 40 м2
Под ключ (с отделкой) Под усадку (без отделки)
Фундамент Свайно-винтовой или ж/б сваи (рассчитываются отдельно).
Гидроизоляция фундамента Рубероид в два слоя.
Основание (обвязка) Из обрезного бруса (100х150 мм. 150х150 мм. 150х200 мм. согласно выбранному сечению бруса). Обработка антисептиком.
Количество рядов основания 2 2
Цокольное перекрытие Обрезной брус камерной сушки 100х150/50х200 мм. с шагом 600 мм. Обработка антисептиком. Обрезной брус естественной влажности 100х150/50х200 мм. с шагом 600 мм. Обработка антисептиком.
Пол черновой Обрезная доска камерной сушки 20х100 мм. Обрезная доска естественной влажности 20х100 мм.
Внешние стены Профилированный брус камерной сушки, сечением 90х140/140х140/190х140 мм. по выбранной комплектации. Два вида профиля: 
1. С двух сторон, прямой со снятой фаской. 2. Снаружи под «блок- хаус», внутри прямой.
Высота сруба: Сруб одноэтажный- 18 венцов
Сруб с мансардой- 18 венцов
Сруб в 1,5 этажа- 18 венцов, далее каркас с внешней отделкой имитацией бруса.
Сруб в 2 этажа- 37 венцов
Профилированный брус естественной влажности, сечением 90х140/140х140/190х140 мм. по выбранной комплектации. Два вида профиля: 
1. С двух сторон, прямой со снятой фаской. 2. Снаружи под «блок- хаус», внутри прямой.
Высота сруба: Сруб одноэтажный- 18 венцов
Сруб с мансардой- 18 венцов
Сруб в 1,5 этажа- 18 венцов, далее каркас с внешней отделкой имитацией бруса.
Сруб в 2 этажа- 37 венцов
Межвенцовый утеплитель Джут (льноджутовое полотно). Джут (льноджутовое полотно).
Перегородки 1-го этажа Профилированный брус камерной сушки, сечением 90х140 мм. Профилированный брус естественной влажности, сечением 90х140 мм.
Перегородки 2-го этажа Каркасные: доска камерной сушки 40х100 мм, обшитые евровагонкой хвойных пород, камерной сушки, толщиной 12,5 мм. сорт «АВ» (дома с мансардой и в 1,5 этажа). Брусовые: профилированный брус камерной сушки, сечением 90х140 мм. (дома двухэтажные). Каркасные: доска естественной влажности 40х100 мм. (дома с мансардой и в 1,5 этажа). Брусовые: профилированный брус естественной влажности, сечением 90х140 мм. (дома двухэтажные).
Сборка сруба Берёзовый нагель. Берёзовый нагель.
Соединение углов сруба «Тёплый угол» (коренной шип). «Тёплый угол» (коренной шип).
Высота от пола до потолка Сруб одноэтажный: 2,4 м. (18 венцов) Сруб с мансардой: 1-ый этаж- 2,4 м. (18 венцов)
2-ой этаж (мансарда)- 2,3 м.
Сруб в полтора и два этажа:
1-ый этаж 2,4 м ±4 см. (18 венцов)
2-ой этаж 2,4 м ±4 см. каркасные аттиковые стены (боковые) высотой 1,5 м. в полутораэтажном доме
2,4 м ±4 см (поднят брусом на 18 венцов) в двухэтажном доме.
Сруб одноэтажный: 2,5 м. (18 венцов) Сруб с мансардой: 1-ый этаж- 2,5 м. (18 венцов)
2-ой этаж (мансарда)- 2,4 м.
Сруб в полтора и два этажа:
1-ый этаж 2,5 м ±4 см. (18 венцов)
2-ой этаж 2,5 м ±4 см. каркасные аттиковые стены (боковые) высотой 1,5 м. в полутораэтажном доме
2,5 м ±4 см (поднят брусом на 18 венцов) в двухэтажном доме.
Утепление (пол, потолок, мансарда) Минеральная вата Knauf 150 мм. Отсутствует.
Пароизоляция (пол, потолок, мансарда) Ондутис R70. Отсутствует.
Пол чистовой Шпунтованная доска камерной сушки толщиной 36 мм. сорт АВ. по рейке 20х40 мм. либо шпунтованная ДСП 16 мм. по разряженной обрешётке из обрезной доски камерной сушки 20х100 мм. Отсутствует.
Потолки Евровагонка камерной сушки толщиной 12,5 мм. сорт АВ. Отсутствует.
Окна Деревянные, двойного остекления. Отсутствуют.
Двери Входная- металлическая, утеплённая (Россия). Межкомнатные- филёнчатые. Отсутствуют.
Наличники на окна и двери Наличник деревянный, строганый, камерной сушки 70-90 мм. Отсутствует.
Шиповка оконных и дверных проёмов (ройки) Да. Отсутствует.
Лестница (при наличии второго этажа) Деревянная, одно или двухмаршевая. Перила- заводские резные, балясины- заводские точеные, устанавливаются стартовые точёные столбы. Ступени 40х200 мм. Тетива лестницы- 90х140 мм. Отсутствует.
Крыша Двускатная, ломаная или вальмовая в соответствии с проектом. Двускатная, ломаная или вальмовая в соответствии с проектом.
Стропильная система Выполнена из обрезной доски камерной сушки 40х150 мм. Шаг установки стропильных ног 600 мм. Выполнена из обрезной доски естественной влажности 40х150 мм. Шаг установки стропильных ног 600 мм.
Обрешётка Выполняется из обрезной доски камерной сушки толщиной 20-22 мм. Шаг крепления обрешетки 300 мм. Контробрешётка выполняется из бруска камерной сушки 40х50 мм. Крепится по стропильным ногам (вентиляционный зазор). Выполняется из обрезной доски естественной влажности толщиной 20-22 мм. Шаг крепления обрешетки 300 мм. Контробрешётка выполняется из бруска естественной влажности 40х50 мм. Крепится по стропильным ногам (вентиляционный зазор).
Подкровельная мембрана Ондутис А100 Ондутис А100
Кровельное покрытие (на выбор) Ондулин, Черепица Ондулин. Ондулин, Черепица Ондулин.
Фронтоны (при наличии) Каркас из обрезной доски камерной сушки 40х150 мм. Обшиваются вагонкой камерной сушки толщиной 16 мм. сорт АВ по контррейке 20х40 мм. (вентиляционный зазор). Влаго-ветрозащита Ондутис А100. Монтаж вентиляционных решёток. Каркас из обрезной доски естественной влажности 40х150 мм. Обшиваются вагонкой камерной сушки толщиной 16 мм. сорт АВ по контррейке 20х40 мм. (вентиляционный зазор). Влаго-ветрозащита Ондутис А100. Монтаж вентиляционных решёток.
Свесы крыши Ширина 400 мм. Подшиваются вагонкой камерной сушки, сорт АВ. Ширина 400 мм. Подшиваются вагонкой камерной сушки, сорт АВ.
Терраса/балкон (при наличии) Устанавливаются опорные столбы из строганного бруса камерной сушки 140х140 мм. с компенсационными болтами под усадку. Устанавливаются опорные столбы из строганного бруса естественной влажности 140х140 мм. с компенсационными болтами под усадку.
Отделка потолка террасы/балкона Евровагонка камерной сушки толщиной 12,5 мм. сорт АВ. Отсутствует.
Пол террасы/балкона Шпунтованная доска камерной сушки толщиной 36 мм. сорт АВ. Отсутствует.
Ограждение террасы/балкона Перила- строганая доска. Балясины- точеные, фигурные. Либо ограждение в скандинавском стиле. Устанавливаются ступени у входа. Отсутствует.
Допуск на геометрические параметры сруба Составляет +/- 50 мм по длине с каждой стороны. Составляет +/- 50 мм по длине с каждой стороны.
Допускается стыковка бруса, вагонки и половой доски По всему периметру стен дома (если ширина и длина дома более 6,0 метров). Вагонки и доски пола в каждой отдельной комнате. По всему периметру стен дома (если ширина и длина дома более 6,0 метров).
Допуски по брусу, доске +/- 5 мм. +/- 5 мм.
В стоимость включена Доставка комплекта материала в радиусе 500 км. от г. Пестова Новгородской области и сборка дома на вашем участке. Доставка комплекта материала в радиусе 500 км. от г. Пестова Новгородской области и сборка дома на вашем участке.
Гарантия 5 лет. 2 года.
Бытовка строительная 2,0х3,0 м. каркасно-щитовая. Стоимость 23000 руб. Остаётся на участке Заказчика. Стоимость 23000 руб. Остаётся на участке Заказчика.
Туалет 1,0х1,0 м. каркасно-щитовой. Стоимость 12000 руб. Остаётся на участке Заказчика. Стоимость 12000 руб. Остаётся на участке Заказчика.
Генератор Стоимость аренды на весь срок строительства 10000 руб. ГСМ за счёт Заказчика. Стоимость аренды на весь срок строительства 10000 руб. ГСМ за счёт Заказчика.

Строительство деревянного дома осуществляется в нескольких видах: под усадку, когда сруб отстаивается на протяжении определенного времени и полностью под ключ.

Зимой мастера рекомендуют строить дома из зимнего леса, летом - из бруса камерной сушки.

Оптимальными для дачи или сада являются экономичные домики на винтовых сваях, на нашем сайте имеются одноэтажные и полуторатажные варианты.

Если вы планируете проживать постоянно, готовы предложить надежные и очень теплые дома на плитном и ленточном фундаменте.

Имеется несколько вариантов размеров профбруса: 190х140 мм и 140х140 мм. Дома из вертикального бруса возводятся с использованием бруса 140х190 мм.

Дополнительные услуги


Проект 10 – оригинальное решение полутораэтажного дома из бруса с балконом и маленькой террасой. Общая площадь помещений по этому проекту –40 кв.м., размер дома – 6х6 м..

Стены здания выполнены из строганого бруса с профильными соединениями паз-гребень. Между венцами уложено льноджутовое полотно. Двойное остекление оконных проемов и филенчатые двери обеспечивают отсутствие сквозняков в доме и благоприятный микроклимат, а двойные зимние окна – естественное освещение и свежий воздух.

Полы двойные – чистовая шпунтованная доска настелена по черному покрытию из полуобрезных досок.

двускатная крыша покрывается ондулиновым шифером красного, коричневого или зеленого цвета – на выбор заказчика.

Компания «Дача из бруса» не только поставляет домокомплекты по данному проекту , но и может выполнить работы по его установке – от нулевого цикла и подводки коммуникаций до финишной отделки.


Популярные проекты

хит продаж брус камерной сушки
Тип:
Общая площадь: 1142
1743000
от 1660000
хит продаж брус камерной сушки
Тип: с балконом, с маленькой террасой
Общая площадь: 662
1417500
от 1350000
хит продаж брус камерной сушки
Тип:
Общая площадь: 1002
1459500
от 1390000

Заказать или задать вопрос



Заказать или задать вопрос

Заказать звонок