Проект №78 Двухэтажный Дом с террасой 9х9

каркас из строганой доски
Создайте свой план для этого проекта
и отправьте его нам на расчет в один клик.
Каркасный дом (150 мм) 9х9 Толщина утепления 150 мм 2920000 Заказать
Каркасный дом (200 мм) 9х9 Толщина утепления 200 мм 3130000 Заказать

Воспользуйтесь нашим планировщиком для того, чтобы получить личную планировку.

С использованием планировщика можно создавать схемы, планы, чертежи, эскизы дома с мансардой, эркером, с требуемым количеством комнат. Вы сможете получить современный проект, на 100% отвечающий вашим условиям.

Вы можете подобрать нужный тип кровли. Ваша крыша может быть четырехскатная, двускатная и вальмовая. Двухскатная крыша - наиболее популярна в малометражных домах.

Самые востребованные размеры домов: мини - до 50 кв. М (чаще всего, одноэтажные); компактные - от 70 квадратных метров до 100 квадратов (обычно 2х этажные); большие дома - от 150 квадратных метров и больше.

Можем предложить дуплексы - большие каркасные дома с двумя входами, рассчитанные на несколько семей. Дома предполагаются для двух хозяев и делятся на две половины, для обоих половин - свой вход.


Наши работы

Перейти в галерею


Комплектация

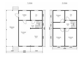
Площадь застройки: 81 м2
Длина: 9 м
Ширина: 9 м
Общая площадь: 98 м2
Исполнение Под ключ (с отделкой)
Фундамент Свайно-винтовой или ж/б сваи (рассчитываются отдельно).
Гидроизоляция фундамента Рубероид в два слоя.
Основание (обвязка) Из обрезного бруса 150х150 мм. 150х200 мм. согласно выбранной толщине утепления. Торцевая доска строганая 45х145/45х195+/-5 мм. согласно выбранной толщине утепления. Обработка антисептиком.
Цокольное перекрытие Строганая доска камерной сушки 45х145/45х195+/-5 мм. с шагом 590 мм. Обработка антисептиком.
Пол черновой Обрезная доска камерной сушки 20х100 мм.
Влаго-ветрозащита чернового пола Мембрана Ондутис А100.
Внешние стены Стойки каркаса из строганой доски камерной сушки 45х145/45х195+/-5 мм. с шагом 590 мм. Верхняя двойная и нижняя обвязки из строганой доски камерной сушки 45х145/45х195+/-5 мм. Разгрузочный ригель из строганой доски 45х145+/-5 мм. Укосины из строганой доски 20х95 мм.
Перегородки Стойки каркаса из строганой доски камерной сушки 45х95+/-5 мм. с шагом 590 мм. Верхняя двойная и нижняя обвязки из строганой доски 45х95+/-5 мм. Разгрузочный ригель из строганой доски камерной сушки 45х145+/-5 мм. Укосины из строганой доски камерной сушки 20х95 мм.
Сборка каркаса На гвозди.
Высота от пола до потолка Дом одноэтажный: 2,5 м. Дом с мансардой: 1-ый этаж- 2,5 м.
2-ой этаж (мансарда)- 2,3 м.
Дом в полтора и два этажа:
1-ый этаж 2,5 м.
2-ой этаж 2,4 м. в полутораэтажном доме
2,5 м. в двухэтажном доме.
Внешняя отделка стен Имитация бруса камерной сушки, сорт АВ, толщиной 17 мм. Монтаж через строганый брусок камерной сушки 45х45+/-5 мм. (вентилируемый фасад). Влаго-ветрозащитная мембрана- Ондутис А100.
Внутренняя отделка стен, перегородок Евровагонка камерной сушки, сорт АВ, толщиной 12,5 мм. по строганой рейке 20х40+/-5 мм. либо ГКЛ 12,5 мм.
Отделка потолка Евровагонка камерной сушки, сорт АВ толщиной, 12,5 мм. по строганой рейке 20х40+/-5 мм. либо ГКЛ 12,5 мм.
Пол чистовой Шпунтованная доска камерной сушки толщиной 35-36 мм. сорт АВ. по строганой рейке 20х40+/-5 мм. либо шпунтованная ДСП 16 мм. по разряженной обрешётке из строганой доски камерной сушки 20х95+/-5 мм.
Утепление (пол, потолок) Минеральная вата Knauf 150/200 мм. согласно выбранной толщине утепления.
Утепление стен Плитный утеплитель Rockwool, толщиной 150/200 мм. согласно выбранной толщине утепления.
Звукоизоляция перегородок Плитный утеплитель Rockwool, толщиной 100 мм.
Пароизоляция (стены, перегородки, пол, потолок) Плёнка Ондутис R70. Дополнительная герметизация нахлёстов/примыканий пароизоляционной плёнки клейкой лентой Delta.
Окна Двухкамерные стеклопакеты ПВХ белого цвета, профиль 60 мм. В комплекте: отливы, подоконники, москитные сетки.
Двери Входная- металлическая, утеплённая (Россия). Межкомнатные- филёнчатые.
Наличники на окна и двери Наличник деревянный, строганый, камерной сушки 70-90 мм. с двух сторон.
Лестница (при наличии второго этажа) Деревянная, одно или двухмаршевая. Перила- заводские резные, балясины- заводские точеные, устанавливаются стартовые точёные столбы. Ступени 40х200 мм. Тетива лестницы- 90х140 мм.
Крыша Двускатная, ломаная или вальмовая в соответствии с проектом.
Стропильная система Выполнена из строганой доски камерной сушки 45х145/45х195+/-5 мм. Шаг установки стропил 590 мм.
Обрешётка Выполняется из строганой доски камерной сушки толщиной 20х95+/-5 мм. Шаг крепления обрешетки 350 мм. Контробрешётка выполняется из строганого бруска камерной сушки 45х45+/-5 мм. Крепится по стропилам (вентиляционный зазор).
Подкровельная мембрана Ондутис А100
Кровельное покрытие (на выбор) Металлочерепица 0,45 мм. Цвет на выбор.
Фронтоны (при наличии) Каркас из строганой доски камерной сушки 45х145/45х195+/-5 мм. Обшиваются имитацией бруса камерной сушки, сорт АВ, толщиной 17 мм. Монтаж через строганый брусок камерной сушки 45х45+/-5 мм. (вентилируемый фасад). Влаго-ветрозащитная мембрана- Ондутис А100. Монтаж вентиляционных решёток.
Свесы крыши Ширина 400 мм. Подшиваются вагонкой камерной сушки, сорт АВ.
Терраса/балкон (при наличии) Устанавливаются опорные столбы из строганного бруса камерной сушки 140х140 мм.
Отделка потолка террасы/балкона Евровагонка камерной сушки толщиной 12,5 мм. сорт АВ.
Пол террасы/балкона Шпунтованная доска камерной сушки толщиной 35-36 мм. сорт АВ.
Ограждение террасы/балкона Перила- строганая доска. Балясины- точеные, фигурные. Либо ограждение в скандинавском стиле. Устанавливаются ступени у входа.
Допуск на геометрические параметры Составляет +/- 50 мм по длине с каждой стороны.
Допускается стыковка имитации бруса, вагонки и половой доски По всему периметру стен дома (если ширина и длина дома более 6,0 метров). Вагонки и доски пола в каждой отдельной комнате.
Допуски по имитации бруса, вагонке, доске +/- 5 мм.
В стоимость включена Доставка комплекта материала в радиусе 500 км. от г. Пестова Новгородской области и сборка дома на вашем участке.
Гарантия 5 лет.
Бытовка строительная 2,0х3,0 м. каркасно-щитовая. Стоимость 23000 руб. Остаётся на участке Заказчика.
Туалет 1,0х1,0 м. каркасно-щитовой. Стоимость 12000 руб. Остаётся на участке Заказчика.
Генератор Стоимость аренды на весь срок строительства 15000 руб. ГСМ за счёт Заказчика.

Строительство каркасных домов производится в нескольких видах: под ключ и под усадку, когда сруб отстаивается в течение определенного времени.

Зимой эксперты рекомендуют строить дом в мороз, чтобы каркас не успел промокнуть, в летнюю пору - не в дождливую.

Наиболее подходящими для сада или дачи считаются бюджетные дома на винтовых сваях, у нас представлены одноэтажные и полуторатажные варианты.

В том случае если дом строится для ПМЖ (постоянного проживания), рекомендуем теплые двухэтажные и одноэтажные дома на ленточном и плитном фундаменте.

Существует 2 вида утепления: 200 мм и 150 мм. Каркасные дома с утеплителем сто пятьдесят миллиметров получаются дешевле, но менее энергоэффективными.

Дополнительные услуги


Проект 78 – красивый полутораэтажный дом, который отличается интересной планировкой и светлыми, уютными комнатами, общая площадь которых составляет 98 кв.м.. Такой каркасный дом с большой террасой подойдет как для проживания круглый год, так и для сезонного пребывания гостей, желающих отдохнуть ближе к природе.

В каждой комнате имеются двойные зимние окна размером 1x1,2 м. Высота потолков первого этажа – 2,45 м. Здание имеет двускатную крышу, укрывающую дом от непогоды и снега. Крыша покрывается ондулином (выберите цвет из трех предложенных: красный, зеленый, коричневый). Контраст кровли с основной частью дома делает экстерьер особенно привлекательным.

Наша компания давно и успешно работает на строительном рынке в Пестово. Выполняем строительство по проектам любой сложности, разрабатываем индивидуальные планы. Обретите надежное жилище вместе с компанией «Дача из бруса»!


Популярные проекты


Дома из бруса с верандой Каркасные дома с террасой Каркасные дома с балконом
хит продаж
Тип: с балконом, с маленькой террасой
Общая площадь: 2
3612000
от 3440000
хит продаж
Тип:
Общая площадь: 2
2478000
от 2360000
хит продаж
Тип:
Общая площадь: 2
2824500
от 2690000
Дома из бруса

Заказать или задать вопрос




Отзывы наших клиентов

Спасибо за оперативность и ответственность, с которой вы подошли к моему заказу; когда другие компании отказывались от сжатых сроков, вы взялись и блестяще выполнили работу, собрав каркасный дом за рекордные три недели без малейшего ущерба для качества.

Вадим Уткин
08/06/2025


С вами приятно иметь дело на всех этапах, начиная от заключения договора и заканчивая сдачей готового объекта, и я уверен, что буду рекомендовать Брус дома всем своим друзьям и коллегам.

Егор Волков
05/09/2025


Дом построен на совесть — ни щелей, ни перекосов, только радость от каждого проведенного в нем дня.

Владислав Шестаков
01/20/2025


Заказать или задать вопрос

Заказать звонок

Напишите нам
Здравствуйте! Отправьте нам вопрос или заявку в WhatsApp